
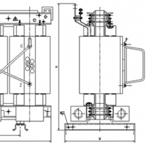
35kV級SC(B)系列三相干式配電變壓器
35kV SC(B) Series Three-phase Dry Type Distribution Transformer




注:表中提供的外形尺寸及重量僅供參考,請以訂貨時提供的外形尺寸圖為準。
35kV級SC(B)系列三相干式配電變壓器 2024-4-28 本文被閱讀 2000次
| 上一條:20kV級SC(B)系列三相干式配電變壓器 | 下一條:山東省民營科技企業 |
主營干式變壓器、油浸式變壓器、電抗器、美式箱變、組合式變電站等城網電氣產品設備






公司主導產品包括節能型干式變壓器、油浸式變壓器、智能組合箱式變電站、輸變電設備及高低壓配電柜等
如果有需求請撥打我們的服務熱線
地址:山東省金鄉縣化雨工業園
聯系電話(微信同號):15953487777 13953726991
聯系人:孫經理


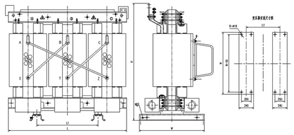
35kV級SC(B)系列三相干式配電變壓器
35kV SC(B) Series Three-phase Dry Type Distribution Transformer




注:表中提供的外形尺寸及重量僅供參考,請以訂貨時提供的外形尺寸圖為準。
| 上一條:20kV級SC(B)系列三相干式配電變壓器 | 下一條:山東省民營科技企業 |